KÖNEK K220

Vivez grand dans 220 pi² : le Konek K220 réinvente l’habitat.

Le confort écologique à portée de main.

space_icon1

Préfabriqué

space_icon2

Éco-Resposable

Architecture Innovative

Autosuffisant

Le Könek K220 est conçu pour offrir un cadre de vie authentique, sain et durable, en intégrant des matériaux biosourcés et des techniques artisanales qui assurent à la fois esthétique intemporelle et performances écologiques.

Vivre

Des Finitions Naturelles, Saines et Durables

Constellations utilise des matériaux naturels qui améliorent l’air intérieur et régulent l’humidité. Grâce à la laine de chanvre et aux panneaux de fibre de bois, l’isolation est optimale. Les finitions en chaux et en argile, ainsi que les peintures naturelles, créent un environnement sain en réduisant l’humidité, les moisissures et les polluants. Selon l’ADEME, ces choix diminuent jusqu’à 50 % l’empreinte carbone d’un bâtiment.

Architecture

Faites l'expérience de la simplicité et du confort

Alliant design artisanal et éco-technologie, le Könek Signature Artcan de Constellations créent des espaces uniques et durables. La cuisine se distingue par des comptoirs en micro-ciment sculptés à la main, résistants et faciles d’entretien. La salle de bain adopte l’enduit de chaux et argile tadelakt, assurant une finition élégante, imperméable et saine. Dans la chambre, l’enduit de chanvre et le badigeon à la chaux remplacent le gypse, offrant une esthétique naturelle et une régulation optimale de l’humidité pour un confort durable.

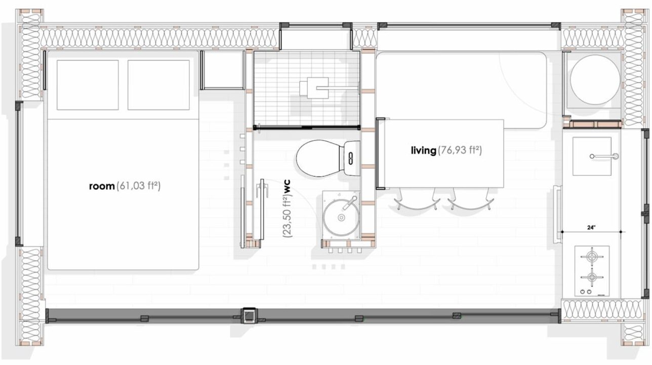
Plan d'étage

Un plan spacieux et efficace

Le plan d'étage du Könek offre polyvalence et fonctionnalité dans un espace compact. Avec des options pour une ou deux chambres fermées, une salle de bain complète et une cuisine complète, ce modèle est parfait pour les familles ou les individus qui souhaitent réduire leurs effectifs sans sacrifier la commodité. Avec sa gamme d'options de personnalisation, le Könek peut être personnalisé pour répondre aux exigences spécifiques de chaque client, ce qui en fait un choix de premier ordre pour ceux qui recherchent un espace de vie contemporain et adaptable.

Économie

Établir la norme pour la construction durable

Nos Constellations est fabriqué à partir d;'une structure en bois du Québec et l'enveloppe building optimisée permet à nos structures d'être écoénergétique permettant d'économiser sur coûts de chauffage par rapport à une maison traditionnelle. La structure est fabriquée à partir de matériaux de haute qualité garantissant que votre investissement durera pour les générations à venir.

Technical Sheet

Könek artcan

Dimensions habitable

220 pi2

Capacité

2 à 4 personnes

Dimensions externes

10x20

Fondation

Pieux, slabe de Béton, sous-sol

Finiton Externe

Tôle, Canexel, Cèdres

Finiton Interne

Gypse, Plywood Écoresposnable, Chanvre, Argile

Lumières

Leds standards, Bande led signature

Panneaux Électrique

200 amps

Plancher

Liège, Vinyle recyclé, Bois Franc, Céramique

Deck externe

10x20

Chambres

1

Cuisine

1

Salle de bain

1

Mudroom

En option

Site web en Construction!

Merci pour l’intérêt que vous portez à Constellations. Nous sommes une petite start up et travaillons fort pour finaliser notre site web. Revenez bientôt pour avoir accès à cette section du site.

Une question?
Appelez nous au
514-572-8953