Tenji T640
Compact, lumineux et durable – le Tenji T640 redéfinit l’habitat écoresponsable.
Habiter autrement, intelligemment
Préfabriqué
Éco-Resposable
Architecture Innovative
Autosuffisant
Le Tenji T640 offre 640 pi2 de confort optimisé. Avec deux chambres, une salle de bain et une aire de vie lumineuse, il maximise l’espace sans compromis. Son extérieur en tôle ou CanExel résiste aux intempéries et demande peu d’entretien. Pensé pour les milieux naturels ou les projets en grappe, il s’intègre harmonieusement à son environnement. Chaque décision de conception vise l'efficacité, l’adaptabilité et la durabilité, en cohérence avec les valeurs écoconstructives de Constellations.house.




Vivre
Un intérieur éco-design lumineux
L’intérieur du Tenji marie simplicité, fonctionnalité et matériaux durables. Deux chambres aux extrémités assurent l’intimité, tandis que l’aire commune invite à la détente. Le contreplaqué sans formaldéhyde, les comptoirs écoresponsables et les planchers à faible GES assurent un espace sain. Option de mobilier intégré pour plus d’efficacité. Chaque détail est pensé pour créer une ambiance chaleureuse et contemporaine, fidèle à la philosophie nordique et écologique de Constellations.
Architecture
Construction fiable, en usine certifiée
Chaque Tenji est fabriqué en usine selon la norme CSA A277, assurant une qualité constante, un contrôle rigoureux et une réduction des délais. En partenariat avec un fabricant certifié RBQ-GCR, ce procédé minimise les pertes, facilite le transport et améliore la performance énergétique. Le résultat : un module prêt à assembler, conforme aux standards les plus exigeants en habitation durable.







Économie
Une expérience ancrée dans la nature
Vivre ou séjourner dans un Tenji, c’est choisir la tranquillité, la lumière et le confort. Chaque détail inspire une connexion au paysage environnant. L’accompagnement de Constellations transforme l’achat ou la location en expérience fluide et mémorable. Pour les propriétaires comme les voyageurs, le Tenji devient bien plus qu’un espace : c’est un lieu de ressourcement.
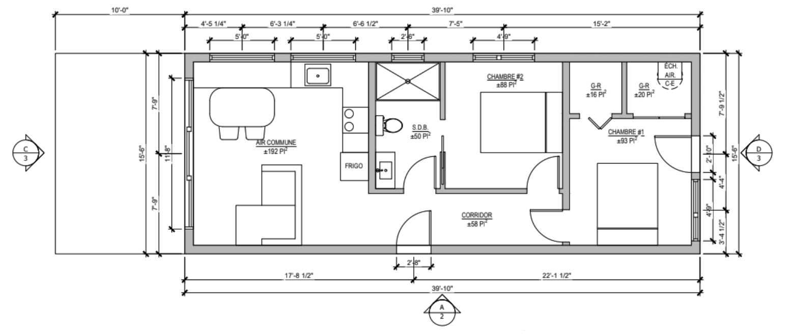
Plan d'étage
Un plan pensé pour la vie
Le Tenji T640 repose sur une trame simple : 16 x 40 pieds. Deux chambres aux extrémités, une cuisine centrale et une salle de bain intelligente pour limiter les coûts techniques. Disponible en version 1 ou 2 salles de bain, selon les besoins. Sa configuration linéaire permet une implantation efficace, idéale pour les projets de villégiature. Compact, lumineux, personnalisable : le Tenji s’adapte à votre terrain et à votre style de vie.